For more information regarding the value of a property, please contact us for a free consultation.
Key Details
Sold Price $1,530,000
Property Type Condo
Sub Type All Other Attached
Listing Status Sold
Purchase Type For Sale
Square Footage 2,779 sqft
Price per Sqft $550
MLS Listing ID PTP2507489
Sold Date 11/04/25
Bedrooms 7
Full Baths 6
Year Built 2025
Lot Size 6,807 Sqft
Property Sub-Type All Other Attached
Property Description
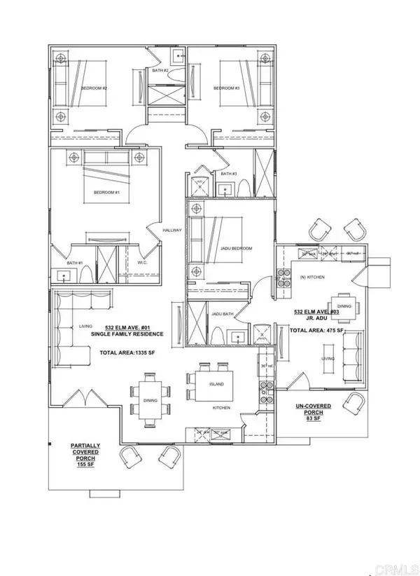
GREAT INVESTMENT PROPERTY Rates are dropping - Lock in a low rate before they go back up. Thoughtfully transformed through a complete renovation, the residence was structurally updated & enhanced with every detail of design. Perfect for an owner-occupant, Airbnb host, or traveling professionals, this beach community property offers incredible flexibility and income potential. It features 3 new construction units: main single-family 1335 sq ft home (3 bed /3 bath) with attached 475 sq ft junior ADU (1 bed /1 bath) and detached 969 sq ft ADU (3 bed /2 bath). Features include , separate entrances, private yards, individual electric meters, open concept, vaulted ceilings, in-unit washer/dryers, refined finishes such as quartz counter tops, custom cabinetry and tile designs, energy efficient appliances and multizone heating evoke a sense of comfort and understated luxury. This exceptional multi-family property offers a rare investment coastal living opportunity!
Location
State CA
County San Diego
Zoning R-1
Direction Behind Mar Vista HS. Exit Palm Ave off 5 south. Left on Carolina St and Right on Elm
Interior
Cooling Zoned Area(s)
Fireplace No
Appliance Dryer, Washer
Exterior
Fence Excellent Condition, Wood
View Y/N Yes
Building
Story 1
Sewer Public Sewer
Level or Stories 1
Others
Senior Community No
Tax ID 6253132500
Acceptable Financing Cash, Conventional, FHA, VA
Listing Terms Cash, Conventional, FHA, VA
Special Listing Condition Standard
Read Less Info
Want to know what your home might be worth? Contact us for a FREE valuation!

Our team is ready to help you sell your home for the highest possible price ASAP

Bought with Tristin Mattazaro LPT Realty, Inc.




